Each plan is available in 3- or 4-bedroom configurations with optional garages, patios, and flex spaces. All homes feature open-concept living and modern finishes.
Available Now
The Belmont blends cottage-style curb appeal with a spacious, modern interior. Features include a generous primary bedroom suite, open kitchen-dining flow, and an attached 2-car garage. The optional 4th bedroom adds flexibility for growing families.
Available Now
The Aspen features a clean craftsman roofline with a charming front porch. The interior delivers a split-bedroom layout, a large kitchen with island prep space, and a bright dining area. A 4th bedroom option includes an additional half bath.
Available Now
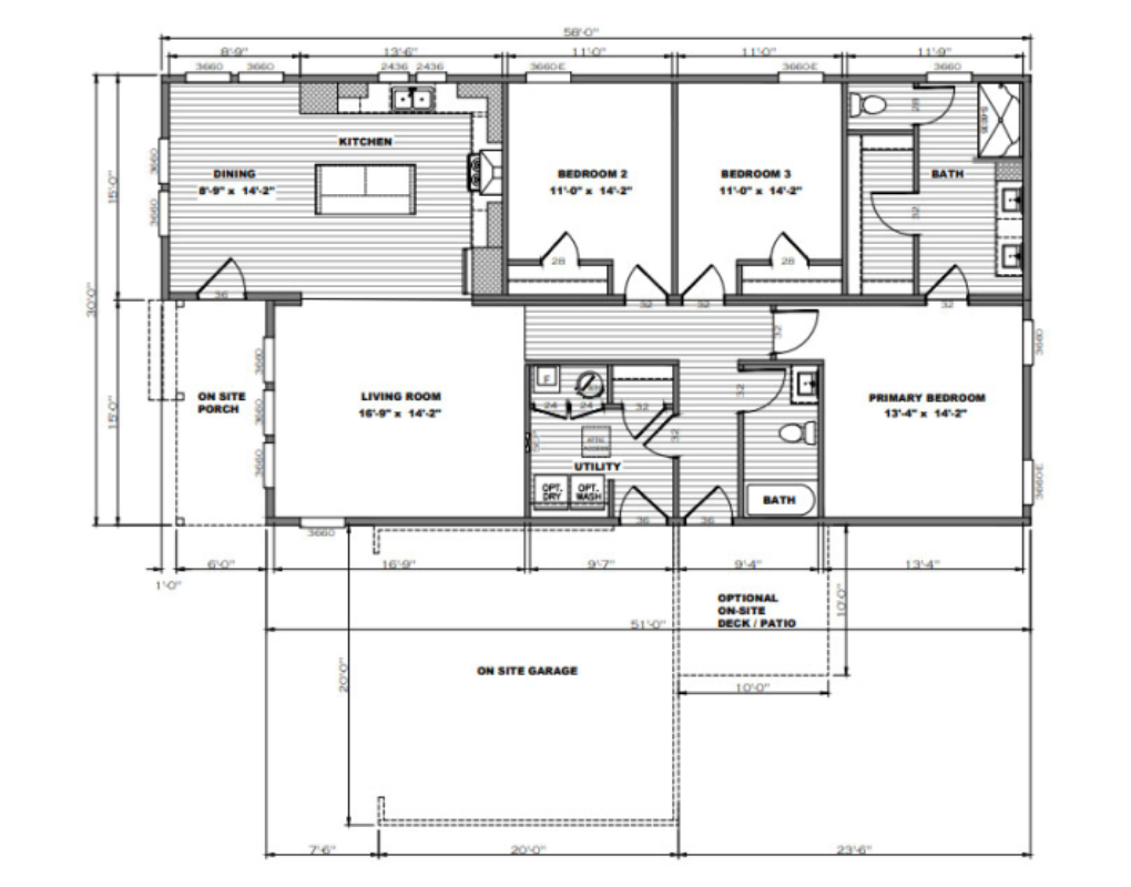
The Keeneland is the largest single-story plan, offering a sprawling ranch layout with a covered front porch, oversized living area, and an open kitchen overlooking the dining space. Bedroom 2 and 3 share a well-appointed hall bath.
Available Now
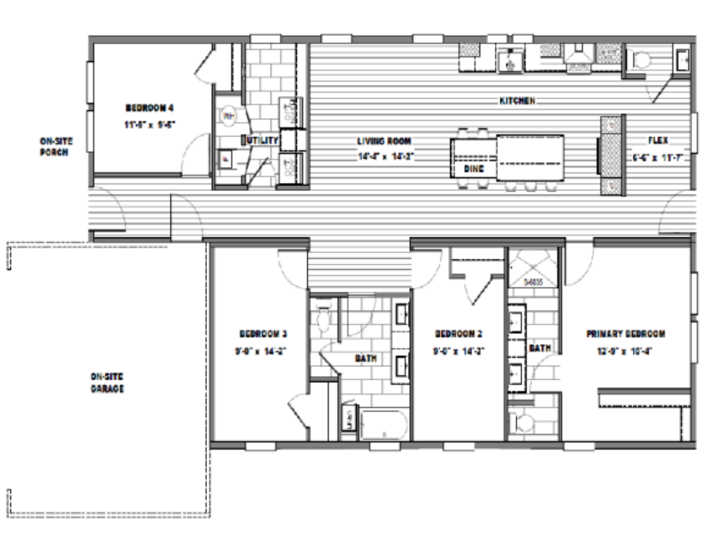
The Magnolia features a stunning blue-grey craftsman exterior with a welcoming covered porch. Inside, find a Flex room that works as an office, studio, or 4th bedroom, alongside a chef-friendly kitchen with pantry and a split primary suite.
Available Now
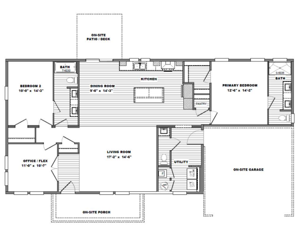
The Hawthorne is a bold ranch-style home with a striking dark exterior and attached garage. Designed for your growing family, this plan features 2 bedrooms, a Flex/Office room, a full utility room, and a spacious open-plan living and kitchen area with dine-in space.
Pre-sales are open and lots are limited. Contact our agents now to choose your preferred floor plan and reserve your place in Timber Ridge.
Contact an Agent